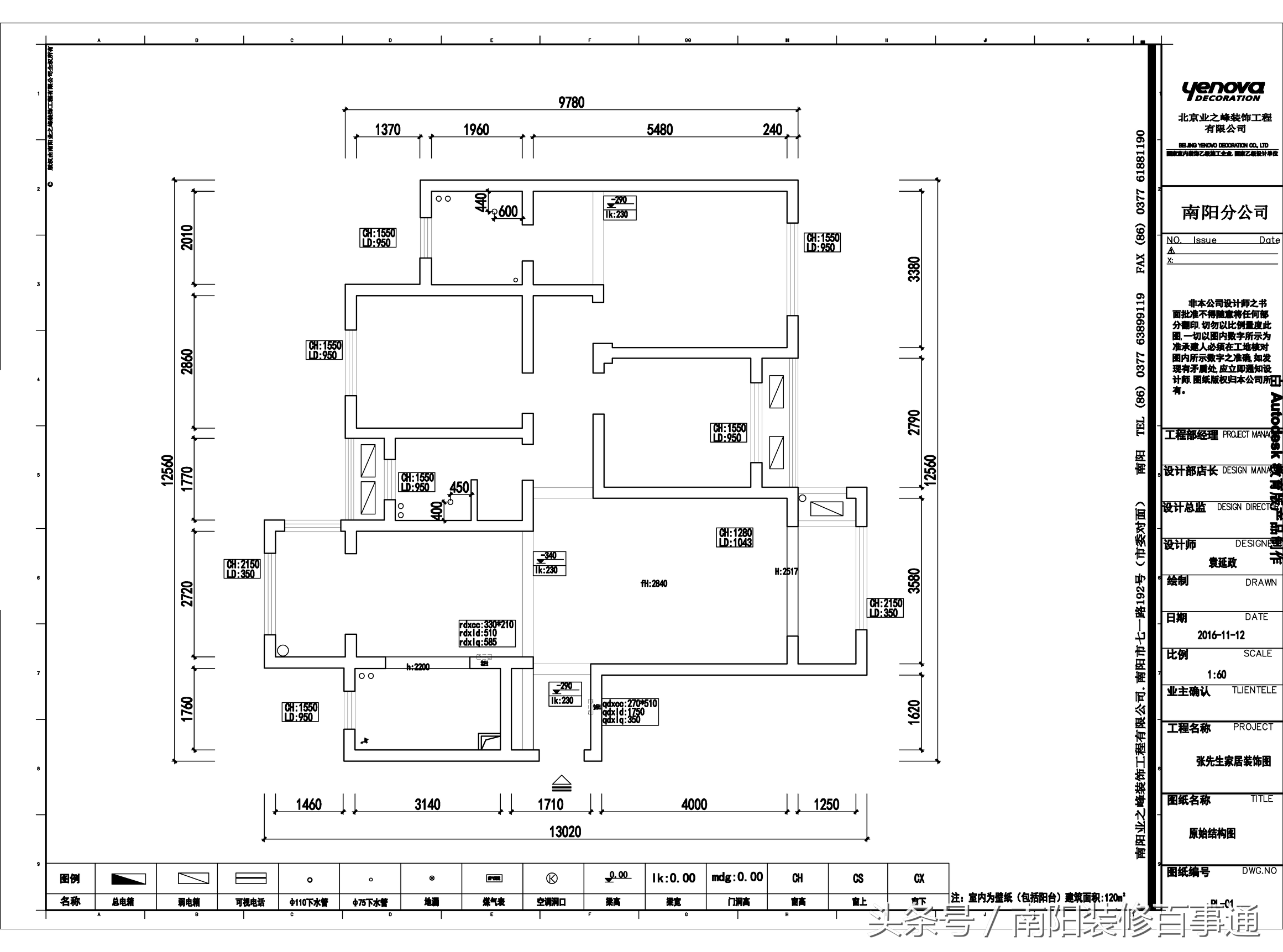
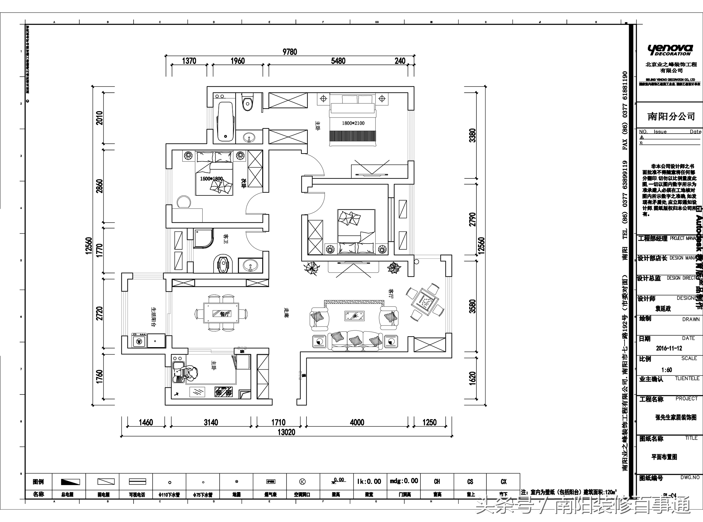
【项目地址】:南阳·建业森林半岛
【项目面积】:126㎡
【风格定位】:简欧风格
【风格分析】:男士大概27岁左右未婚,一直在外地工作,老家方城县的,想回南阳发展。房子是二手毛胚新房,急于装修居住,居住人群父母姐姐和自己,自己对家的定义就是舒适,方便。喜欢木纹质感。自己喜欢白的,父母喜欢重色。为了融合房东的思想,我做出的风格定位:简欧
【设计说明】:风格特点,在造型上,以简单的直线条表现简欧的舒适大方。在色彩上,采用柔和的中性色彩,给人优雅温馨、自然脱俗的感觉。在材质上,运用壁纸、护墙板等,将欧式风韵与现代舒适感完美地融合在一起。
【设计及施工单位】:南阳业之峰装饰
【效果图欣赏】:








工作经验:7年
设计理念:从实用的角度,到超载的发挥,构成艺术的主体!
擅长风格:欧式新中式新古典现代简约美式
主要设计专长:住宅、样板间、办公空间
代表作品:建业森林半岛怡博小区华鑫苑三川盛唐西峡别墅龙腾小区镇平别墅玉龙苑凤凰城国尊男仕会所星海网络会所帝苑锦城皇马国际凯旋城新城国际
免责声明:本文章如果文章侵权,请联系我们处理,本站仅提供信息存储空间服务如因作品内容、版权和其他问题请于本站联系